ตรวจบ้าน เดอะพรีโก้ เชียงใหม่ (ตรวจครั้งที่ 2)

Social Share
139 views | 4 ปีที่แล้ว

ตรวจบ้าน เดอะพรีโก้ เชียงใหม่ (ตรวจครั้งที่ 2)

ตรวจบ้าน เดอะพรีโก้ The Prego สันกำแพง เชียงใหม่ กับ ทีมงาน Keyhomechecker 

  • สะดวกในการนัดหมาย 
  • ตรวจเสร็จรับรายงานทันที
  • ตรวจละเอียด มีโดรนคอยตรวจดูมาตรฐานของหลังคา

ดูตัวอย่างรายงานตรวจบ้าน  ด้านล่าง

คำนวณราคาตรวจบ้านและคอนโด คลิกที่นี่

ติดต่อ : https://facebook.com/IKeyhomechecker

รายงานตรวจรับบ้านและคอนโด

ชื่อโครงการ: เดอะพรีโก้
รายงาน: เดอะพรีโก้ (ตรวจครั้งที่ 2)
วันที่เข้าตรวจ: 23 ก.ค. 2021

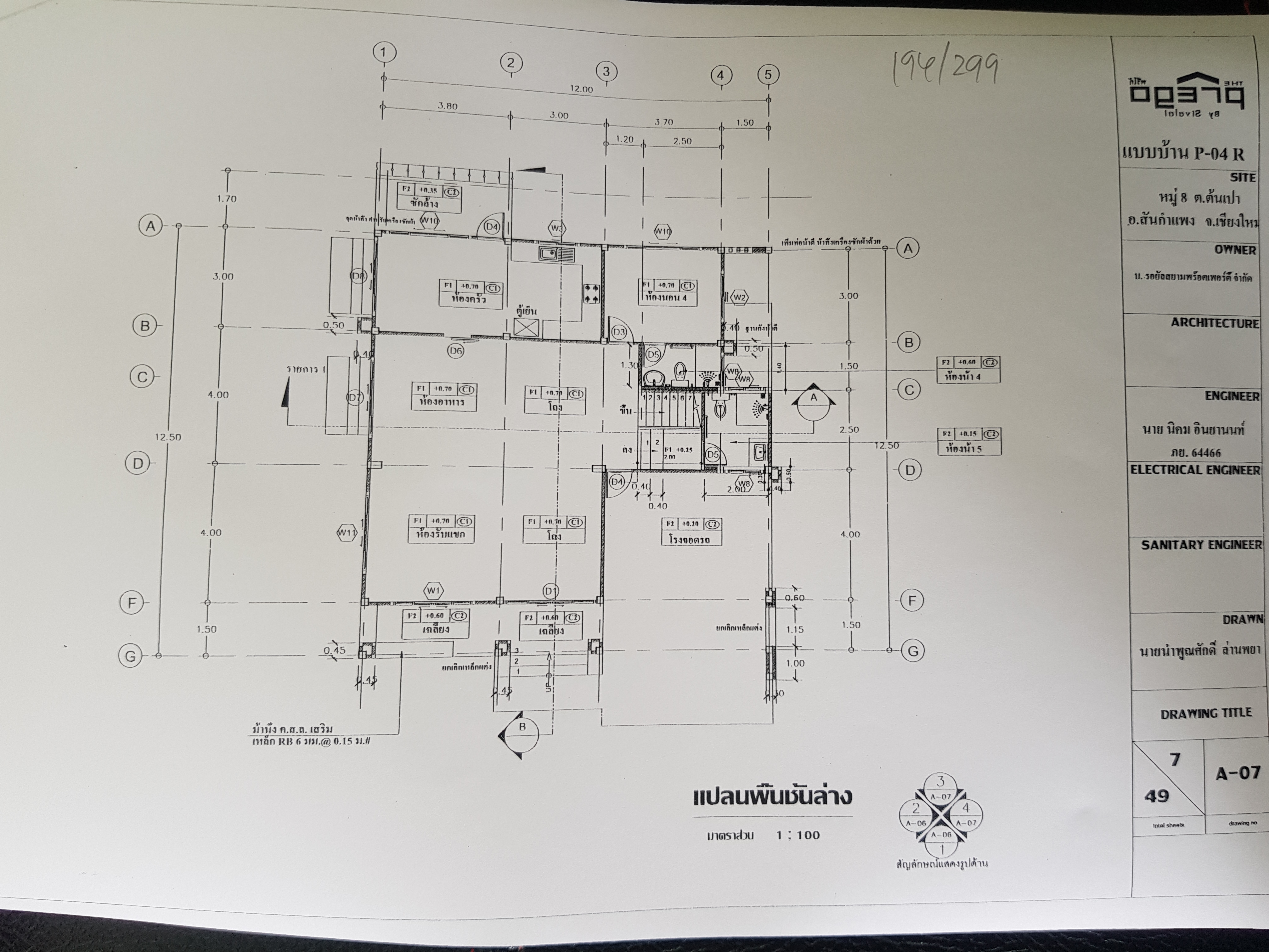
ผังบ้านหรือคอนโด

1. งานภูมิทัศน์และพื้นที่ภายนอกบ้าน

ก่อนแก้ไข
งานภูมิทัศน์และพื้นที่ภายนอกบ้าน

มีรอยแตกร้าว

หลังแก้ไข
งานภูมิทัศน์และพื้นที่ภายนอกบ้าน

งานเรียบร้อยดี

ก่อนแก้ไข
งานภูมิทัศน์และพื้นที่ภายนอกบ้าน

สีไม่เต็ม

หลังแก้ไข
งานภูมิทัศน์และพื้นที่ภายนอกบ้าน

งานเรียบร้อยดี

ก่อนแก้ไข
งานภูมิทัศน์และพื้นที่ภายนอกบ้าน

ทำความสะอาดก๊อกน้ำ

หลังแก้ไข
งานภูมิทัศน์และพื้นที่ภายนอกบ้าน

ยังไม่ได้แก้ไข ก๊อกน้ำ เปื้อนสี ขัดทำความสะอาดหรือเปลี่ยนใหม่

ก่อนแก้ไข
งานภูมิทัศน์และพื้นที่ภายนอกบ้าน

ฝาบ่อพักแตก

หลังแก้ไข
งานภูมิทัศน์และพื้นที่ภายนอกบ้าน

เปลี่ยนแล้ว งานเรียบร้อยดี

ก่อนแก้ไข
งานภูมิทัศน์และพื้นที่ภายนอกบ้าน

สีไม่เต็ม

หลังแก้ไข
งานภูมิทัศน์และพื้นที่ภายนอกบ้าน

ยังไม่ได้แก้ไข สีไม่เต็ม สีด่าง

ก่อนแก้ไข
งานภูมิทัศน์และพื้นที่ภายนอกบ้าน

เก็บสี

หลังแก้ไข
งานภูมิทัศน์และพื้นที่ภายนอกบ้าน

งานเรียบร้อยดี

ก่อนแก้ไข
งานภูมิทัศน์และพื้นที่ภายนอกบ้าน

เก็บสี

หลังแก้ไข
งานภูมิทัศน์และพื้นที่ภายนอกบ้าน

งานเรียบร้อยดี

ก่อนแก้ไข
งานภูมิทัศน์และพื้นที่ภายนอกบ้าน

รอยต่อแผ่นยิปซั่ม ทั้ง3แนว โรงจอดรถ แก้ไขโดยการฉาบ และเก็บสี รอยต่อยุบตัว

หลังแก้ไข
งานภูมิทัศน์และพื้นที่ภายนอกบ้าน

ยังไม่ได้แก้ไข รอยต่อแผ่น งานฉาบไม่เรียบร้อย ทั้ง 3 แนว

ก่อนแก้ไข
งานภูมิทัศน์และพื้นที่ภายนอกบ้าน

เก็บรอยร้าว

หลังแก้ไข
งานภูมิทัศน์และพื้นที่ภายนอกบ้าน

งานเรียบร้อยดี

ก่อนแก้ไข
งานภูมิทัศน์และพื้นที่ภายนอกบ้าน

เก็บรอยร้าว

หลังแก้ไข
งานภูมิทัศน์และพื้นที่ภายนอกบ้าน

งานเรียบร้อยดี

ก่อนแก้ไข
งานภูมิทัศน์และพื้นที่ภายนอกบ้าน

ผนังด้านหลังบ้าน สีไม่เต็ม

หลังแก้ไข
งานภูมิทัศน์และพื้นที่ภายนอกบ้าน

ยังไม่ได้แก้ไข สีด่าง แผงหลัง 4 ล็อค

ก่อนแก้ไข
งานภูมิทัศน์และพื้นที่ภายนอกบ้าน

เก็บรอยร้าว

หลังแก้ไข
งานภูมิทัศน์และพื้นที่ภายนอกบ้าน

งานเรียบร้อยดี

ก่อนแก้ไข
งานภูมิทัศน์และพื้นที่ภายนอกบ้าน

ทำความสะอาดขี้ปูน ผิวไม่เรียบ

หลังแก้ไข
งานภูมิทัศน์และพื้นที่ภายนอกบ้าน

แก้ไขแล้ว ค้างเก็บสี

ก่อนแก้ไข
งานภูมิทัศน์และพื้นที่ภายนอกบ้าน

เก็บรอยร้าว

หลังแก้ไข
งานภูมิทัศน์และพื้นที่ภายนอกบ้าน

งานเรียบร้อยดี

ก่อนแก้ไข
งานภูมิทัศน์และพื้นที่ภายนอกบ้าน

ซ่อมรอยแตก

หลังแก้ไข
งานภูมิทัศน์และพื้นที่ภายนอกบ้าน

งานเรียบร้อยดี

ก่อนแก้ไข
งานภูมิทัศน์และพื้นที่ภายนอกบ้าน

เก็บรอยร้าว

หลังแก้ไข
งานภูมิทัศน์และพื้นที่ภายนอกบ้าน

งานเรียบร้อยดี

ก่อนแก้ไข
งานภูมิทัศน์และพื้นที่ภายนอกบ้าน

ผิวคานไม่เรียบ สีไม่สม่ำเสมอ

หลังแก้ไข
งานภูมิทัศน์และพื้นที่ภายนอกบ้าน

งานเรียบร้อยดี

ก่อนแก้ไข
งานภูมิทัศน์และพื้นที่ภายนอกบ้าน

ดินยุบตัว เก็บสี หรือเติมดิน

หลังแก้ไข
งานภูมิทัศน์และพื้นที่ภายนอกบ้าน

งานเรียบร้อยดี

ก่อนแก้ไข
งานภูมิทัศน์และพื้นที่ภายนอกบ้าน

ทำความสะอาด

หลังแก้ไข
งานภูมิทัศน์และพื้นที่ภายนอกบ้าน

งานเรียบร้อยดี

ก่อนแก้ไข
งานภูมิทัศน์และพื้นที่ภายนอกบ้าน

ดินยุบตัว เก็บสี หรือเติมดิน ขอให้แก้ไขโดยรอบอาคาร

หลังแก้ไข
งานภูมิทัศน์และพื้นที่ภายนอกบ้าน

งานเรียบร้อยดี

ก่อนแก้ไข
งานภูมิทัศน์และพื้นที่ภายนอกบ้าน

เก็บยาแนว

หลังแก้ไข
งานภูมิทัศน์และพื้นที่ภายนอกบ้าน

งานเรียบร้อยดี

ก่อนแก้ไข
งานภูมิทัศน์และพื้นที่ภายนอกบ้าน

เก็บสี

หลังแก้ไข
งานภูมิทัศน์และพื้นที่ภายนอกบ้าน

ยังไม่ได้แก้ไข เก็บสี (ขอบหน้าต่างติดกับประตูเข้าบ้าน)

2. งานห้องโถง ห้องนั่งเล่น

ก่อนแก้ไข
งานห้องโถง ห้องนั่งเล่น

เก็บยาแนวรอยต่อ ร้าว

หลังแก้ไข
งานห้องโถง ห้องนั่งเล่น

งานเรียบร้อยดี

ก่อนแก้ไข
งานห้องโถง ห้องนั่งเล่น

ขัดทำความสะอาด

หลังแก้ไข
งานห้องโถง ห้องนั่งเล่น

งานเรียบร้อยดี

ก่อนแก้ไข
งานห้องโถง ห้องนั่งเล่น

ทำความสะอาดซิลิโคน

หลังแก้ไข
งานห้องโถง ห้องนั่งเล่น

งานเรียบร้อยดี

ก่อนแก้ไข
งานห้องโถง ห้องนั่งเล่น

ทำความสะอาดซิลิโคนเปื้อนวงกบ

หลังแก้ไข
งานห้องโถง ห้องนั่งเล่น

งานเรียบร้อยดี

ก่อนแก้ไข
งานห้องโถง ห้องนั่งเล่น

ทำความสะอาดซิลิโคนเปื้อนวงกบ

หลังแก้ไข
งานห้องโถง ห้องนั่งเล่น

งานเรียบร้อยดี

ก่อนแก้ไข
งานห้องโถง ห้องนั่งเล่น

ร่องใส่มุ้งลวด โค้งงอ 2 จุด ซ้าย-ขวา

หลังแก้ไข
งานห้องโถง ห้องนั่งเล่น

ยังไม่ได้แก้ไข

ก่อนแก้ไข
งานห้องโถง ห้องนั่งเล่น

ทำความสะอาดซิลิโคนเปื้อนวงกบ

หลังแก้ไข
งานห้องโถง ห้องนั่งเล่น

งานเรียบร้อยดี

ก่อนแก้ไข
งานห้องโถง ห้องนั่งเล่น

แก้ไขผนังร้าว 2 จุด

หลังแก้ไข
งานห้องโถง ห้องนั่งเล่น

งานเรียบร้อยดี

ก่อนแก้ไข
งานห้องโถง ห้องนั่งเล่น

เก็บสายไม่เรียบร้อย

หลังแก้ไข
งานห้องโถง ห้องนั่งเล่น

ยังไม่ได้แก้ไข

ก่อนแก้ไข
งานห้องโถง ห้องนั่งเล่น

เก็บยาแนวใหม่ ร้าว

หลังแก้ไข
งานห้องโถง ห้องนั่งเล่น

ยังไม่ได้แก้ไข

ก่อนแก้ไข
งานห้องโถง ห้องนั่งเล่น

เก็บยาแนวใหม่ ร้าว

หลังแก้ไข
งานห้องโถง ห้องนั่งเล่น

ยังไม่ได้แก้ไข มีรอยร้าว

ก่อนแก้ไข
งานห้องโถง ห้องนั่งเล่น

ขัดสี ทำความสะอาด

หลังแก้ไข
งานห้องโถง ห้องนั่งเล่น

งานเรียบร้อยดี

ก่อนแก้ไข
งานห้องโถง ห้องนั่งเล่น

สีร่อน

หลังแก้ไข
งานห้องโถง ห้องนั่งเล่น

งานเรียบร้อยดี

ก่อนแก้ไข
งานห้องโถง ห้องนั่งเล่น

ขัดทำความสะอาด ร้อยเปื้อนติดสี

หลังแก้ไข
งานห้องโถง ห้องนั่งเล่น

งานเรียบร้อยดี

ก่อนแก้ไข
งานห้องโถง ห้องนั่งเล่น

เก็บสีทับคราบกาว

หลังแก้ไข
งานห้องโถง ห้องนั่งเล่น

งานเรียบร้อยดี

ก่อนแก้ไข
งานห้องโถง ห้องนั่งเล่น

ขัด เก็บสี

หลังแก้ไข
งานห้องโถง ห้องนั่งเล่น

งานเรียบร้อยดี

ก่อนแก้ไข
งานห้องโถง ห้องนั่งเล่น

เก็บสี ขอบล่างบัว

หลังแก้ไข
งานห้องโถง ห้องนั่งเล่น

งานเรียบร้อยดี

ก่อนแก้ไข
งานห้องโถง ห้องนั่งเล่น

เก็บสีขอบล่างบัว

หลังแก้ไข
งานห้องโถง ห้องนั่งเล่น

งานเรียบร้อยดี

ก่อนแก้ไข
งานห้องโถง ห้องนั่งเล่น

สีด่าง เก็บสี

หลังแก้ไข
งานห้องโถง ห้องนั่งเล่น

งานเรียบร้อยดี

3. งานห้องครัวชั้น 1

ก่อนแก้ไข
งานห้องครัวชั้น 1

ผิวไม่เรียบ เก็บขอบล่าง

หลังแก้ไข
งานห้องครัวชั้น 1

งานเรียบร้อยดี

ก่อนแก้ไข
งานห้องครัวชั้น 1

กระเบื้องสูงต่ำไม่เท่ากัน เดินสะดุดเท้า 2 แผ่น

หลังแก้ไข
งานห้องครัวชั้น 1

ยังไม่ได้แก้ไข

ก่อนแก้ไข
งานห้องครัวชั้น 1

เก็บรอยร้าว ทำความสะอาดคราบกาว

หลังแก้ไข
งานห้องครัวชั้น 1

ยังไม่ได้แก้ไข

ก่อนแก้ไข
งานห้องครัวชั้น 1

เก็บรอยร้าว ทำความสะอาดคราบกาว

หลังแก้ไข
งานห้องครัวชั้น 1

ยังไม่ได้แก้ไข

ก่อนแก้ไข
งานห้องครัวชั้น 1

ซิลิโคนเปื้อนวงกบ ทำความสะอาดตลอดแนว

หลังแก้ไข
งานห้องครัวชั้น 1

ยังไม่ได้แก้ไข ซิลิโคนเลอะวงกบ

ก่อนแก้ไข
งานห้องครัวชั้น 1

ยาแนวเก็บขอบกระเบื้อง ไม่เต็ม

หลังแก้ไข
งานห้องครัวชั้น 1

ยังไม่ได้แก้ไข ยาแนวไม่เต็ม

ก่อนแก้ไข
งานห้องครัวชั้น 1

ไม่เรียบร้อย

หลังแก้ไข
งานห้องครัวชั้น 1

งานเรียบร้อยดี

ก่อนแก้ไข
งานห้องครัวชั้น 1

ไม่เรียบร้อย

หลังแก้ไข
งานห้องครัวชั้น 1

งานเรียบร้อยดี

ก่อนแก้ไข
งานห้องครัวชั้น 1

ทำความสะอาดอ่างล้างจาน

หลังแก้ไข
งานห้องครัวชั้น 1

งานเรียบร้อยดี

ก่อนแก้ไข
งานห้องครัวชั้น 1

ยาแนวไม่เต็ม

หลังแก้ไข
งานห้องครัวชั้น 1

งานเรียบร้อยดี

ก่อนแก้ไข
งานห้องครัวชั้น 1

ยาแนวทับรอยดำ

หลังแก้ไข
งานห้องครัวชั้น 1

งานเรียบร้อยดี

ก่อนแก้ไข
งานห้องครัวชั้น 1

ยาแนวไม่เต็ม

หลังแก้ไข
งานห้องครัวชั้น 1

งานเรียบร้อยดี

ก่อนแก้ไข
งานห้องครัวชั้น 1

ยาแนวไม่เต็ม

หลังแก้ไข
งานห้องครัวชั้น 1

งานเรียบร้อยดี

ก่อนแก้ไข
งานห้องครัวชั้น 1

ทำความสะอาด

หลังแก้ไข
งานห้องครัวชั้น 1

งานเรียบร้อยดี

ก่อนแก้ไข
งานห้องครัวชั้น 1

เก็บรอยร้าว

หลังแก้ไข
งานห้องครัวชั้น 1

งานเรียบร้อยดี

ก่อนแก้ไข
งานห้องครัวชั้น 1

ยาแนวไม่เต็ม

หลังแก้ไข
งานห้องครัวชั้น 1

งานเรียบร้อยดี

ก่อนแก้ไข
งานห้องครัวชั้น 1

เก็บรอยแตก

หลังแก้ไข
งานห้องครัวชั้น 1

งานเรียบร้อยดี

งานห้องครัวชั้น 1

วงกบ ยุบตัว ผิวไม่เรียบ

4. งานบันไดชั้น 1

ก่อนแก้ไข
งานบันไดชั้น 1

ขัดทำความสะอาด วงกบ

หลังแก้ไข
งานบันไดชั้น 1

ยังไม่ได้แก้ไข ทำความสะอาดคราบกาว

ก่อนแก้ไข
งานบันไดชั้น 1

ผนังมีรอยร้าว

หลังแก้ไข
งานบันไดชั้น 1

ยังไม่ได้แก้ไข มีรอยแตกร้าว

ก่อนแก้ไข
งานบันไดชั้น 1

ลบรอยดินสอ และให้เก็บร่องรอยต่อบัว ที่ยิงยาแนวไว้ไม่เต็มตลอดทุกขั้นบันได

หลังแก้ไข
งานบันไดชั้น 1

ยังไม่ได้แก้ไข

ก่อนแก้ไข
งานบันไดชั้น 1

ขัด โป๊ว เก็บสี

หลังแก้ไข
งานบันไดชั้น 1

งานเรียบร้อยดี

ก่อนแก้ไข
งานบันไดชั้น 1

ฝ้าตรงบันได ไม่เรียบร้อย2 จุด ขัดทำสีใหม่

หลังแก้ไข
งานบันไดชั้น 1

2 จุด ยังไม่ได้แก้ไข

ก่อนแก้ไข
งานบันไดชั้น 1

ผิวผนังไม่เรียบ

หลังแก้ไข
งานบันไดชั้น 1

ยังไม่ได้แก้ไข

5. งานห้องนอนชั้น 1 (1)

ก่อนแก้ไข
งานห้องนอนชั้น 1 (1)

หลอดไฟคนละสี จาก4ดวง มี1ดวง สีเพี้ยน

หลังแก้ไข
งานห้องนอนชั้น 1 (1)

ยังไม่ได้แก้ไข สีหลอดไฟ ไม่เหมือนกัน

ก่อนแก้ไข
งานห้องนอนชั้น 1 (1)

ทำความสะอาดคราบกาว

หลังแก้ไข
งานห้องนอนชั้น 1 (1)

งานเรียบร้อยดี

ก่อนแก้ไข
งานห้องนอนชั้น 1 (1)

เก็บแด๊ปขอบวงกบ

หลังแก้ไข
งานห้องนอนชั้น 1 (1)

งานเรียบร้อยดี

ก่อนแก้ไข
งานห้องนอนชั้น 1 (1)

ผนังไม่เรียบ

หลังแก้ไข
งานห้องนอนชั้น 1 (1)

ยังไม่ได้แก้ไข ผนังไม่เรียบ

ก่อนแก้ไข
งานห้องนอนชั้น 1 (1)

ทำความสะอาดคราบกาว

หลังแก้ไข
งานห้องนอนชั้น 1 (1)

งานเรียบร้อยดี

ก่อนแก้ไข
งานห้องนอนชั้น 1 (1)

ยาแนวไม่เต็ม

หลังแก้ไข
งานห้องนอนชั้น 1 (1)

งานเรียบร้อยดี

ก่อนแก้ไข
งานห้องนอนชั้น 1 (1)

ผนังไม่เรียบ

หลังแก้ไข
งานห้องนอนชั้น 1 (1)

งานเรียบร้อยดี

6. งานห้องน้ำชั้น 1 (1)

ก่อนแก้ไข
งานห้องน้ำชั้น 1 (1)

โป๊ว เก็บสี

หลังแก้ไข
งานห้องน้ำชั้น 1 (1)

งานเรียบร้อยดี

ก่อนแก้ไข
งานห้องน้ำชั้น 1 (1)

ผิวไม่เรียบ เป็นรอย

หลังแก้ไข
งานห้องน้ำชั้น 1 (1)

งานเรียบร้อยดี

ก่อนแก้ไข
งานห้องน้ำชั้น 1 (1)

ยาแนวไม่เต็ม

หลังแก้ไข
งานห้องน้ำชั้น 1 (1)

งานเรียบร้อยดี

ก่อนแก้ไข
งานห้องน้ำชั้น 1 (1)

มุมห้องฝั่งกระจก ยาแนวไม่เต็ม

หลังแก้ไข
งานห้องน้ำชั้น 1 (1)

งานเรียบร้อยดี

ก่อนแก้ไข
งานห้องน้ำชั้น 1 (1)

ทำความสะอาดรูระบายน้ำทิ้ง

หลังแก้ไข
งานห้องน้ำชั้น 1 (1)

งานเรียบร้อยดี

ก่อนแก้ไข
งานห้องน้ำชั้น 1 (1)

น้ำซึมจากรูน้ำล้น ห้องติดบันได

หลังแก้ไข
งานห้องน้ำชั้น 1 (1)

น้ำซึม ยังไม่ได้แก้ไข

ก่อนแก้ไข
งานห้องน้ำชั้น 1 (1)

เก็บรอยร้าว ห้องติดบันได

หลังแก้ไข
งานห้องน้ำชั้น 1 (1)

งานเรียบร้อยดี

ก่อนแก้ไข
งานห้องน้ำชั้น 1 (1)

ทำความสะอาดรูระบายน้ำทิ้ง ห้องติดบันได

หลังแก้ไข
งานห้องน้ำชั้น 1 (1)

งานเรียบร้อยดี

7. งานห้องนอนชั้น 2 (1)

ก่อนแก้ไข
งานห้องนอนชั้น 2 (1)

ฝ้าร้าวมุมห้อง

หลังแก้ไข
งานห้องนอนชั้น 2 (1)

งานเรียบร้อยดี

ก่อนแก้ไข
งานห้องนอนชั้น 2 (1)

ยาแนวมีรอยแตกร้าว ตลอดแนว

หลังแก้ไข
งานห้องนอนชั้น 2 (1)

ยังไม่ได้แก้ไข รอยแตกร้าว

ก่อนแก้ไข
งานห้องนอนชั้น 2 (1)

เก็บรอยร้าว

หลังแก้ไข
งานห้องนอนชั้น 2 (1)

งานเรียบร้อยดี

ก่อนแก้ไข
งานห้องนอนชั้น 2 (1)

ผนังผิวไม่เรียบ

หลังแก้ไข
งานห้องนอนชั้น 2 (1)

ยังไม่ได้แก้ไข

ก่อนแก้ไข
งานห้องนอนชั้น 2 (1)

ทำความสะอาด

หลังแก้ไข
งานห้องนอนชั้น 2 (1)

งานเรียบร้อยดี

8. งานห้องนอนชั้น 2 (2)

ก่อนแก้ไข
งานห้องนอนชั้น 2 (2)

ทำความสะอาด

หลังแก้ไข
งานห้องนอนชั้น 2 (2)

ยังไม่ได้ทำความสะอาด คราบซิลิโคนเลอะวงกบ

ก่อนแก้ไข
งานห้องนอนชั้น 2 (2)

เก็บขอบวงกบ

หลังแก้ไข
งานห้องนอนชั้น 2 (2)

ยังไม่ได้แก้ไข

ก่อนแก้ไข
งานห้องนอนชั้น 2 (2)

เก็บรอยแตกร้าว

หลังแก้ไข
งานห้องนอนชั้น 2 (2)

ยังไม่ได้แก้ไข เก็บรอยร้าว

ก่อนแก้ไข
งานห้องนอนชั้น 2 (2)

เก็บรอยแตกร้าว

หลังแก้ไข
งานห้องนอนชั้น 2 (2)

ยังไม่ได้แก้ไข เก็บรอยร้าว

ก่อนแก้ไข
งานห้องนอนชั้น 2 (2)

เก็บสีร้าว

หลังแก้ไข
งานห้องนอนชั้น 2 (2)

งานเรียบร้อยดี

ก่อนแก้ไข
งานห้องนอนชั้น 2 (2)

เก็บสีร้าว

หลังแก้ไข
งานห้องนอนชั้น 2 (2)

งานเรียบร้อยดี

ก่อนแก้ไข
งานห้องนอนชั้น 2 (2)

เก็บรอยร้าว

หลังแก้ไข
งานห้องนอนชั้น 2 (2)

งานเรียบร้อยดี

ก่อนแก้ไข
งานห้องนอนชั้น 2 (2)

เก็บรอยร้าว

หลังแก้ไข
งานห้องนอนชั้น 2 (2)

ยังไม่ได้แก้ไข

ก่อนแก้ไข
งานห้องนอนชั้น 2 (2)

เก็บรอยร้าวตลอดแนวอ่างล้างหน้า

หลังแก้ไข
งานห้องนอนชั้น 2 (2)

งานเรียบร้อยดี

ก่อนแก้ไข
งานห้องนอนชั้น 2 (2)

ทำความสะอาด

หลังแก้ไข
งานห้องนอนชั้น 2 (2)

งานเรียบร้อยดี

ก่อนแก้ไข
งานห้องนอนชั้น 2 (2)

เก็บสี

หลังแก้ไข
งานห้องนอนชั้น 2 (2)

งานเรียบร้อยดี

9. งานห้องนอนชั้น 2 (3)

ก่อนแก้ไข
งานห้องนอนชั้น 2 (3)

เก็บสี

หลังแก้ไข
งานห้องนอนชั้น 2 (3)

งานเรียบร้อยดี

ก่อนแก้ไข
งานห้องนอนชั้น 2 (3)

เก็บรอยร้าว ดูโดยรอบประตูทางออกระเบียงฝั่งห้องน้ำ

หลังแก้ไข
งานห้องนอนชั้น 2 (3)

ยังไม่ได้แก้ไข

ก่อนแก้ไข
งานห้องนอนชั้น 2 (3)

เว้นร่องหรืยาแนวเต็ม

หลังแก้ไข
งานห้องนอนชั้น 2 (3)

ให้เว้นร่อง หรือยาแนวให้เต็ม ยังไม่ได้แก้ไข

ก่อนแก้ไข
งานห้องนอนชั้น 2 (3)

ทำความสะอาดวงกบ

หลังแก้ไข
งานห้องนอนชั้น 2 (3)

งานเรียบร้อยดี

ก่อนแก้ไข
งานห้องนอนชั้น 2 (3)

ลบรอยดินสอ

หลังแก้ไข
งานห้องนอนชั้น 2 (3)

งานเรียบร้อยดี

ก่อนแก้ไข
งานห้องนอนชั้น 2 (3)

เก็บรอยร้าว

หลังแก้ไข
งานห้องนอนชั้น 2 (3)

งานเรียบร้อยดี

ก่อนแก้ไข
งานห้องนอนชั้น 2 (3)

ผิวผนังไม่เรียบ

หลังแก้ไข
งานห้องนอนชั้น 2 (3)

งานเรียบร้อยดี

ก่อนแก้ไข
งานห้องนอนชั้น 2 (3)

เก็บรอยร้าว

หลังแก้ไข
งานห้องนอนชั้น 2 (3)

งานเรียบร้อยดี

ก่อนแก้ไข
งานห้องนอนชั้น 2 (3)

เก็บรอยร้าว

หลังแก้ไข
งานห้องนอนชั้น 2 (3)

ยังไม่ได้แก้ไข รอยร้าวข้างวงกบ

ก่อนแก้ไข
งานห้องนอนชั้น 2 (3)

ขัด ทำความสะอาด

หลังแก้ไข
งานห้องนอนชั้น 2 (3)

งานเรียบร้อยดี

ก่อนแก้ไข
งานห้องนอนชั้น 2 (3)

เก็บรอยร้าว

หลังแก้ไข
งานห้องนอนชั้น 2 (3)

งานเรียบร้อยดี

ก่อนแก้ไข
งานห้องนอนชั้น 2 (3)

เก็บรอยต่อวงกบ

หลังแก้ไข
งานห้องนอนชั้น 2 (3)

งานเรียบร้อยดี

ก่อนแก้ไข
งานห้องนอนชั้น 2 (3)

ตัวเก็บงานหน้าต่าง ไม่แนบสนิท

หลังแก้ไข
งานห้องนอนชั้น 2 (3)

งานเรียบร้อยดี

ก่อนแก้ไข
งานห้องนอนชั้น 2 (3)

ทำความสะอาดขอบวงกบตลอดแนว

หลังแก้ไข
งานห้องนอนชั้น 2 (3)

งานเรียบร้อยดี

ก่อนแก้ไข
งานห้องนอนชั้น 2 (3)

ทำความสะอาด สีติดพื้น

หลังแก้ไข
งานห้องนอนชั้น 2 (3)

งานเรียบร้อยดี

10. งานห้องน้ำชั้น 2 (1)

ก่อนแก้ไข
งานห้องน้ำชั้น 2 (1)

ยาแนวไม่เรียบร้อย

หลังแก้ไข
งานห้องน้ำชั้น 2 (1)

งานเรียบร้อยดี

11. งานห้องน้ำชั้น 2 (3)

ก่อนแก้ไข
งานห้องน้ำชั้น 2 (3)

เก็บรอยร้าว

หลังแก้ไข
งานห้องน้ำชั้น 2 (3)

งานเรียบร้อยดี

ก่อนแก้ไข
งานห้องน้ำชั้น 2 (3)

เก็บรอยร้าว

หลังแก้ไข
งานห้องน้ำชั้น 2 (3)

งานเรียบร้อยดี

ก่อนแก้ไข
งานห้องน้ำชั้น 2 (3)

ทำความสะอาด

หลังแก้ไข
งานห้องน้ำชั้น 2 (3)

งานเรียบร้อยดี

ก่อนแก้ไข
งานห้องน้ำชั้น 2 (3)

ทำความสะอาด

หลังแก้ไข
งานห้องน้ำชั้น 2 (3)

ทำความสะอาดแล้ว แต่ยังมีรอยดำ ข้างซ้ายรอยต่อ ตรวจสอบอีกครั้ง

ก่อนแก้ไข
งานห้องน้ำชั้น 2 (3)

เก็บรอยร้าว

หลังแก้ไข
งานห้องน้ำชั้น 2 (3)

ยังไม่ได้แก้ไข

ก่อนแก้ไข
งานห้องน้ำชั้น 2 (3)

เก็บรอยร้าว ทำความสะอาดวงกบ

หลังแก้ไข
งานห้องน้ำชั้น 2 (3)

ยังไม่ได้แก้ไข รอยร้าว

ก่อนแก้ไข
งานห้องน้ำชั้น 2 (3)

โป๊ว ขัด เก็บสี

หลังแก้ไข
งานห้องน้ำชั้น 2 (3)

แก้ไขอีกครั้ง งานยังไม่เรียบร้อย

ก่อนแก้ไข
งานห้องน้ำชั้น 2 (3)

ลบรอยดินสอ

หลังแก้ไข
งานห้องน้ำชั้น 2 (3)

งานเรียบร้อยดี

ก่อนแก้ไข
งานห้องน้ำชั้น 2 (3)

ทำความสะอาดคราบกาว

หลังแก้ไข
งานห้องน้ำชั้น 2 (3)

งานเรียบร้อยดี

ก่อนแก้ไข
งานห้องน้ำชั้น 2 (3)

ทำความสะอาดคิ้วประตู

หลังแก้ไข
งานห้องน้ำชั้น 2 (3)

งานเรียบร้อยดี

ก่อนแก้ไข
งานห้องน้ำชั้น 2 (3)

ไม่เรียบร้อย

หลังแก้ไข
งานห้องน้ำชั้น 2 (3)

ยาแนวไม่เรียบร้อย รวมไปถึงข้างวงกบ

ก่อนแก้ไข
งานห้องน้ำชั้น 2 (3)

ขัดสีเปื้อนราวแขวนผ้า

หลังแก้ไข
งานห้องน้ำชั้น 2 (3)

งานเรียบร้อยดี

ก่อนแก้ไข
งานห้องน้ำชั้น 2 (3)

ขัด ทำความสะอาด

หลังแก้ไข
งานห้องน้ำชั้น 2 (3)

งานเรียบร้อยดี

ก่อนแก้ไข
งานห้องน้ำชั้น 2 (3)

ขัด ทำความสะอาด

หลังแก้ไข
งานห้องน้ำชั้น 2 (3)

งานเรียบร้อยดี

ก่อนแก้ไข
งานห้องน้ำชั้น 2 (3)

เก็บสี

หลังแก้ไข
งานห้องน้ำชั้น 2 (3)

งานเรียบร้อยดี

ก่อนแก้ไข
งานห้องน้ำชั้น 2 (3)

เก็บสี

หลังแก้ไข
งานห้องน้ำชั้น 2 (3)

งานเรียบร้อยดี

ก่อนแก้ไข
งานห้องน้ำชั้น 2 (3)

เก็บสี

หลังแก้ไข
งานห้องน้ำชั้น 2 (3)

งานเรียบร้อยดี

12. งานดาดฟ้าชั้น 2

ก่อนแก้ไข
งานดาดฟ้าชั้น 2

เก็บสี

หลังแก้ไข
งานดาดฟ้าชั้น 2

งานเรียบร้อยดี

ก่อนแก้ไข
งานดาดฟ้าชั้น 2

เก็บสี

หลังแก้ไข
งานดาดฟ้าชั้น 2

งานเรียบร้อยดี

ก่อนแก้ไข
งานดาดฟ้าชั้น 2

เก็บรอยร้าว

หลังแก้ไข
งานดาดฟ้าชั้น 2

งานเรียบร้อยดี

ก่อนแก้ไข
งานดาดฟ้าชั้น 2

รอยแตกร้าว

หลังแก้ไข
งานดาดฟ้าชั้น 2

งานเรียบร้อยดี

ก่อนแก้ไข
งานดาดฟ้าชั้น 2

เก็บสี

หลังแก้ไข
งานดาดฟ้าชั้น 2

งานเรียบร้อยดี

ก่อนแก้ไข
งานดาดฟ้าชั้น 2

เก็บรอยร้าว

หลังแก้ไข
งานดาดฟ้าชั้น 2

งานเรียบร้อยดี

ก่อนแก้ไข
งานดาดฟ้าชั้น 2

เก็บรอยร้าว

หลังแก้ไข
งานดาดฟ้าชั้น 2

ยังไม่ได้แก้ไข

ก่อนแก้ไข
งานดาดฟ้าชั้น 2

ตัดขอบสีน้ำตาลใหม่

หลังแก้ไข
งานดาดฟ้าชั้น 2

งานเรียบร้อยดี

13. งานบันไดชั้น 2

ก่อนแก้ไข
งานบันไดชั้น 2

เก็บรอยร้าว

หลังแก้ไข
งานบันไดชั้น 2

งานเรียบร้อยดี

ก่อนแก้ไข
งานบันไดชั้น 2

ขัด ทำความสะอาดสีเปื้อนวงกบ

หลังแก้ไข
งานบันไดชั้น 2

งานเรียบร้อยดี

ก่อนแก้ไข
งานบันไดชั้น 2

ยาแนวไม่เต็ม

หลังแก้ไข
งานบันไดชั้น 2

งานเรียบร้อยดี

ก่อนแก้ไข
งานบันไดชั้น 2

คราบกาว ทำความสะอาด

หลังแก้ไข
งานบันไดชั้น 2

งานเรียบร้อยดี

ก่อนแก้ไข
งานบันไดชั้น 2

แตกร้าว

หลังแก้ไข
งานบันไดชั้น 2

งานเรียบร้อยดี

ก่อนแก้ไข
งานบันไดชั้น 2

ผิวไม่เรียย สีตรงกระเบื้องไม่เรียบร้อย

หลังแก้ไข
งานบันไดชั้น 2

งานเรียบร้อยดี

ก่อนแก้ไข
งานบันไดชั้น 2

รอยแตกร้าว

หลังแก้ไข
งานบันไดชั้น 2

งานเรียบร้อยดี

ก่อนแก้ไข
งานบันไดชั้น 2

ตัดขอบสีขาวใหม่

หลังแก้ไข
งานบันไดชั้น 2

ยังไม่ได้แก้ไข

ก่อนแก้ไข
งานบันไดชั้น 2

กระเบื้องไม่เรียบ

หลังแก้ไข
งานบันไดชั้น 2

ยังไม่ได้แก้ไข


ตรวจทั้งหมด 146 รายการ
ผ่าน 104 รายการ
ที่ต้องแก้ไข 42 รายการ
Social Share
Top